
Our Ideal 5000S profiles combine energy efficiency and affordability with the flexibility of extensive customisation to offer homeowners an excellent price-performance ratio. Available in multiple depths to accommodate renovation projects or new builds and a variety of double and triple glazing options, the 5000S provides a solid range of features across the board. The multi-chamber, steel reinforced profile offers excellent burglary protection and sound absorption properties. A huge range of colours and decor possibilities allow the windows to be individually tailored to match your specific project.
IDEAL 5000S – Details
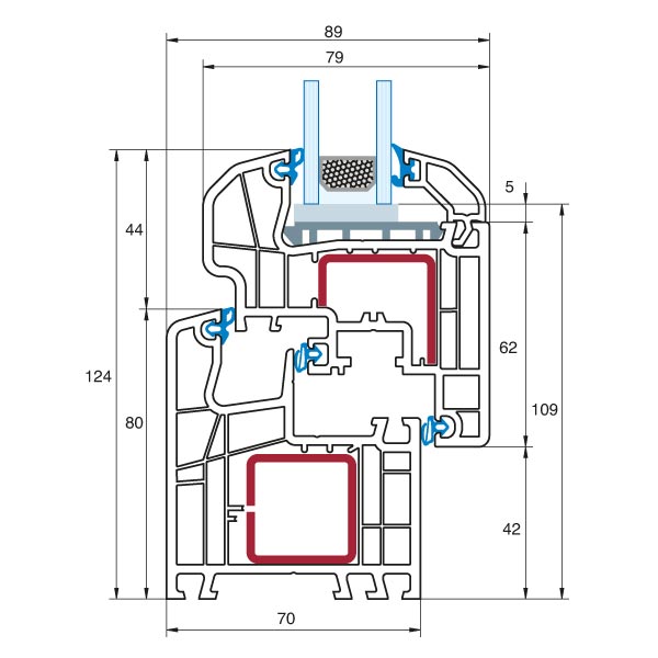
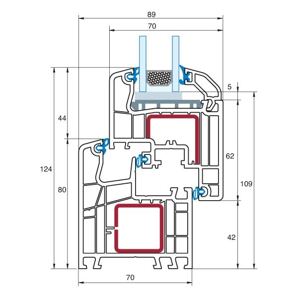
- Frames available in 70 or 80mm installation depths
- Triple seals for reliable weather protection
- Thermal insulation to Uw–value of 0.87 W/m2K with triple glazing and warm edge (reference size: 1230 x 1480mm)
- Double and triple glazing available in thicknesses up to 41mm
- Noise absorption up to RW = 45dB
- Available in a range of interior and exterior colours (80mm frame only)
- Modern treated uPVC provides durability and resistance to discolouration
- Quality Winkhaus fittings with a range of security options
- European style Tilt & Turn opening system
- Profiles can be manufactured in an array shapes incl. arches, angles, ovals and more.
- All materials are up to 98.2% recyclable and are lead, barium and cadmium free
Optional Extras:
- Hidden drainage channels
- Improved security up to Resistance Class 2 (RC2)
- ActivPilot Select fittings with concealed hinges
- ActivPilot comfort with parallel opening for ventilation
- Magnetic contact sensors for electronic lock monitoring
The Ideal 5000S System - Affordable Insulation and Security
Effective insulation needs reliable sealing – inside and outside. In order to achieve this, Ideal 5000S window frames feature a centre seal with two hollow chambers, the outer chamber being separated from the inner one.
Modern manufacturing techniques and glazing technology enable the 5000S profile to achieve great thermal efficiency values. Uw-values to 0.87 W/m2K can be reached with triple glazing and a warm edge spacer.
Great thermal insulation with double and triple-glazed options providing high thermal efficiency.
Keep the Noise Out - Soundproofing with the IDEAL 5000S
Noise pollution is an unfortunate fact of life with ever increasing urbanisation. Windows provide an often overlooked opportunity to remedy this. The multi-chamber design, with triple seals and insulating glazing, provides a sound reduction of up to 45dB (RW). Noise pollution in a village is typically 60dB, whereas in cities it can reach 70dB. Choosing the right windows will ensure a peaceful living environment and sleeping conditions. For this reason, we offer multiple levels of sound reducing glazing.
Modern hinges offer the best burglary protection
Standard Ideal 5000S models are equipped with activPilot hinges, ensuring proper security. Several additional features can be further selected to achieve, for example, resistance class two (RC2) levels, even when tilted open. Special strike plates and multi-point locking further improve burglary protection including drilling attempts.
Individual designs to suit any project
uPVC windows are typically delivered in standard white, however a variety of additional designs and colours allow for personalisation . Whether you prefer a traditional wooden decor or a modern aluminium like feel, we offer a large range of available RAL colours to ensure you find the exact look you want.






