Efficient windows are of special importance nowadays. In times of significant energy spending, the Energeto 5000ED model can help to significantly lower costs and increase efficiency. Advanced thermal insulation does not simply save money on energy bills but also helps meet current and future building regulations. This type of window is suitable for new construction, as well as for renovations. Insulate your home from the cold and rising energy prices.
Energeto 5000ED Details & Advantages
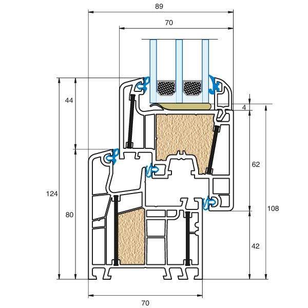
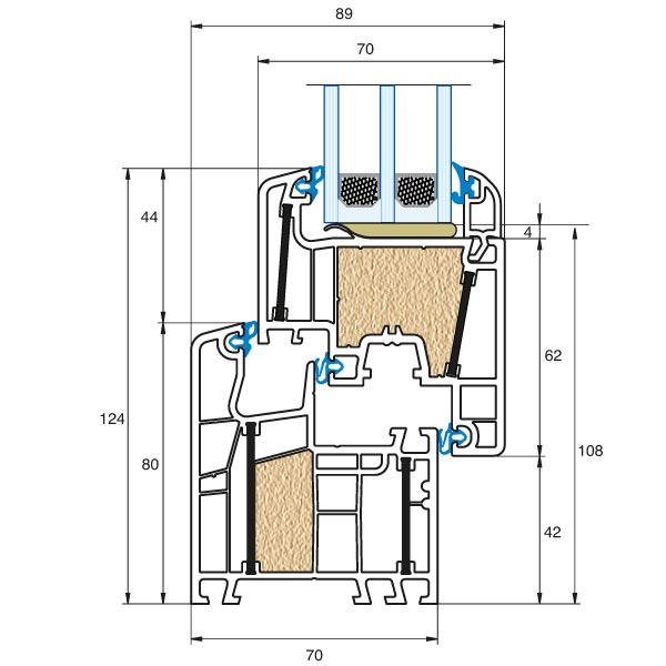
- Carbon fibre reinforced insulation to prevent thermal bridging.
- High-pressure polyurethane foam insulation.
- Insulated glazing is fully bonded into the rebates.
- 70mm installation depth
- Triple glazing fitted as standard for optimal U-values
- Available in classic white and with decors.
- Extremely weather resistant due to modern uPVC material mixtures
- 3-point sealing with gaskets available in black and white.
- Quality German fittings with multi-point locking for burglary protection.
- U-value to 0.87 W/m2K (reference size 1230 x 1480mm) possible based on configuration
- 98.2% recyclable profile and free of lead, cadmium and barium.
Optional Features:
- Hidden drainage elements
- Upgrade to resistance class II possible (RC2)
- activPilot Select fittings with discrete concealed hinges
- activPilot Comfort with parallel opening for ventilation
- High Control with sensors to integrate windows with home security













