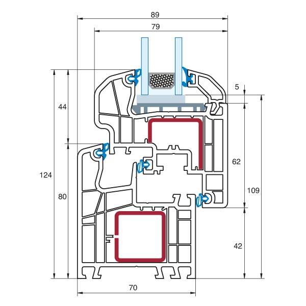
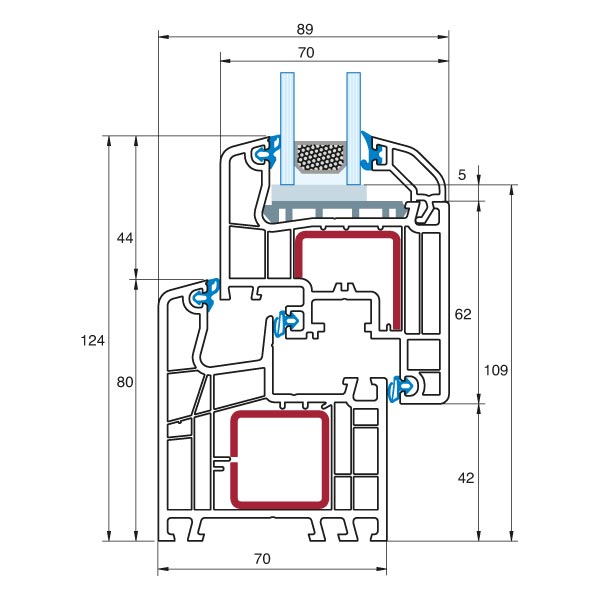
Our Ideal 5000S profiles combine energy efficiency and affordability with the flexibility of extensive customisation to offer homeowners an excellent price-performance ratio. Available in multiple depths to accommodate renovation projects or new builds and a variety of double and triple glazing options, the 5000S provides a solid range of features across the board. The multi-chamber, steel reinforced profile offers excellent burglary protection and sound absorption properties. A huge range of colours and decor possibilities allow the windows to be individually tailored to match your specific project.
IDEAL 5000S – Details
- Frames available in 70 or 80 mm installation depths
- Triple seals for reliable weather protection
- Thermal insulation to Uw–value of 0.87 W/m2K with triple glazing and warm edge (reference size: 1230 x 1480 mm)
- Double and triple glazing available in thicknesses up to 41 mm
- Noise absorption up to 45dB
- Available in a range of interior and exterior colours (80mm frame only)
- Modern treated uPVC provides durability and resistance to discolouration
- Quality Winkhaus fittings with a range of security options
- European style Tilt & Turn opening system
- Profiles can be manufactured in an array shapes incl. arches, angles, ovals and more.
- All materials are up to 98.2% recyclable and are lead, barium and cadmium free
Optional Extras:
- Hidden drainage channels
- Improved security up to Resistance Class 2 (RC2)
- ActivPilot Select fittings with concealed hinges
- ActivPilot comfort with parallel opening for ventilation
- Magnetic contact sensors for electronic lock monitoring















