Our Ideal 8000S profiles combine energy efficiency and affordability with the flexibility of extensive customisation to offer homeowners an excellent price-performance ratio. The 8000S comes in a larger 85 mm depth compared to the 5000S making it well suited to new construction, but renovation as well. With the ability to achieve Uw-values of 0.81 W/m2K with triple glazing and warm edge spacers, the 8000S can achieve near passive house values (Passive House is 0.80 or less) saving you money every month and quickly paying for itself. Best of all, this premium performance does not come at a premium price! Additional glazing and fittings features for increased security, soundproofing, privacy and more are available meaning the window can be tailored to your exact size, shape, functional and aesthetic requirements.
Technical Details
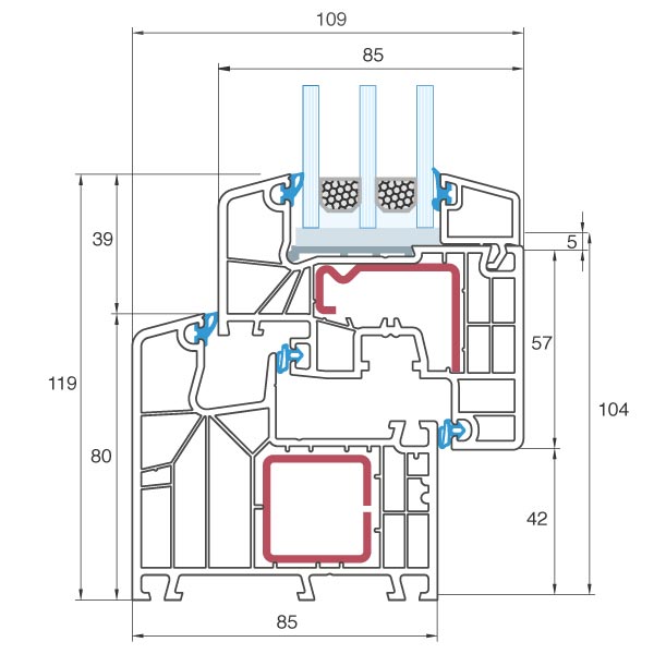
- 85mm installation depth with multiple chambers
- Excellent thermal insulation with Uw–values of 0.81 W/m2K (reference size: 1230 x 1480 mm, triple glazing, warm edge spacer)
- Double and Triple glazing available in thicknesses from 24 to 51 mm (half-recessed up to 59 mm)
- 3-point sealing – available in papyrus white or black with coloured finishes
- European style Tilt & Turn opening
- Sound absorption up to 44dB
- Quality Winkhaus activPilot fittings with a range of security options incl. standard multipoint locking
- An array of arches, angles and shapes are possible – even porthole windows
- Frame up to 98.2% recyclable and 100% free of lead, barium and cadmium
- Available in all RAL colours and many decors for both the interior and exterior
- Modern treated uPVC provides durability and resistance to discolouration.
Optional features:
- Hidden drainage channels
- Improved security up to and including resistance class two (RC2)
- ActivPilot Select fittings with discrete concealed hinges
- ActivPilot Comfort with parallel opening for ventilation
- Magnetic contact sensors for electronic lock monitoring













